Potential Plus - Is this your Future Project or why not just land bank !!
- 9 Bedrooms
- 4 Bathrooms
- 4 Car spaces
- 435 sq metres
Description
Located in Fortitude Valley – High-Value Development Opportunity
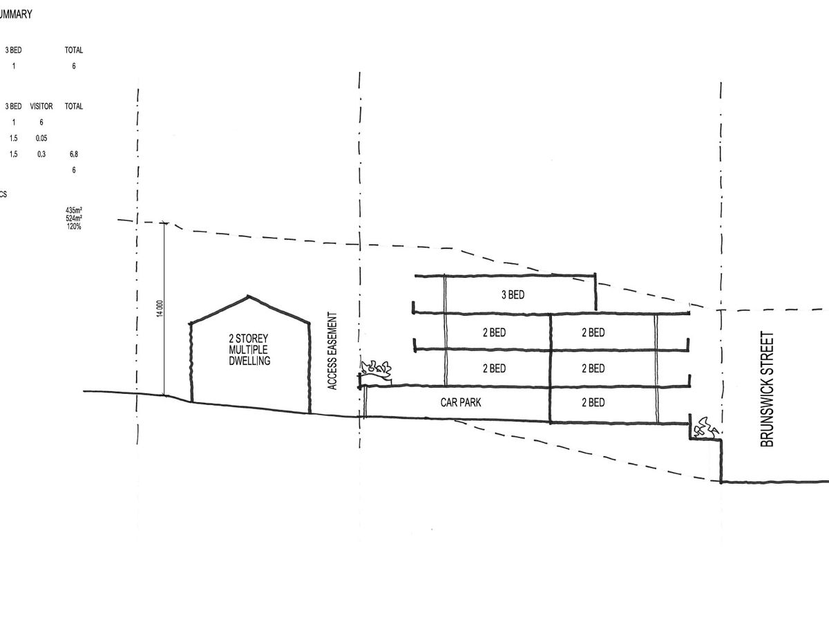
See our proposed development subject to council approval with allowed zoning, further height could be possible STCA !!
Positioned in one of Brisbane’s most tightly held inner-city pockets, this 435m² elevated site with Mixed Home & Business Use zoning presents a compelling opportunity to unlock future value through redevelopment.
With a 15m frontage to Brunswick Street and rear access via Harcourt Street, New Farm, the property offers excellent design flexibility and full site usability — ideal for a boutique apartment project (STCA). Subject to approvals, the site lends itself to the potential development of 5 to 7 apartments, making it an attractive option for developers or investors looking to capitalise on the area’s continued growth.
Currently improved with a 9-bedroom, 4-bathroom configuration, the property provides strong holding income while future plans are explored. Located directly opposite IGA and surrounded by cafés, dining, and lifestyle amenities, the position supports both immediate rental appeal and long-term resale value.
With the 2032 Olympics driving infrastructure and demand, and the 4006 postcode forecast for significant growth, this is a strategic landholding in a high-performing location just minutes from the CBD, James Street, and Howard Smith Wharves.
Key Highlights
435m² elevated block with northeast aspect
Rear lane access via Harcourt Street – maximising development efficiency
15m frontage to Brunswick Street – strong presence & design scope
Mixed Home & Business zoning – suitable for boutique apartment development (STCA)
Potential for 5–7 apartments (STCA)
Holding income from existing 9-bed, 4-bath configuration
Prime lifestyle location surrounded by cafés & retail
Close to CBD, transport, and key lifestyle precincts
Not flood affected
Investment Snapshot
Leased until 29 May 2026 at $2,050 per week
Tenant open to renewal
Council rates: $2,132 per quarter
A rare chance to secure a development-ready site with income, in a location primed for future growth.
Contact Tomas at TS Projects to discuss the development potential of this Brunswick Street, Fortitude Valley location.

